참여마당
질의응답
본문 시작
- 저속한 표현, 특정인 비방, 상업적 내용, 불법선거 등은 예고 없이 삭제될 수 있습니다.
- 주민번호 등 개인정보는 사생활 침해나 부당하게 이용될 수 있으니 주의하시기 바랍니다.
정보통신망 이용 촉진 및 정보보호등에 관한 법률 제44조
제목
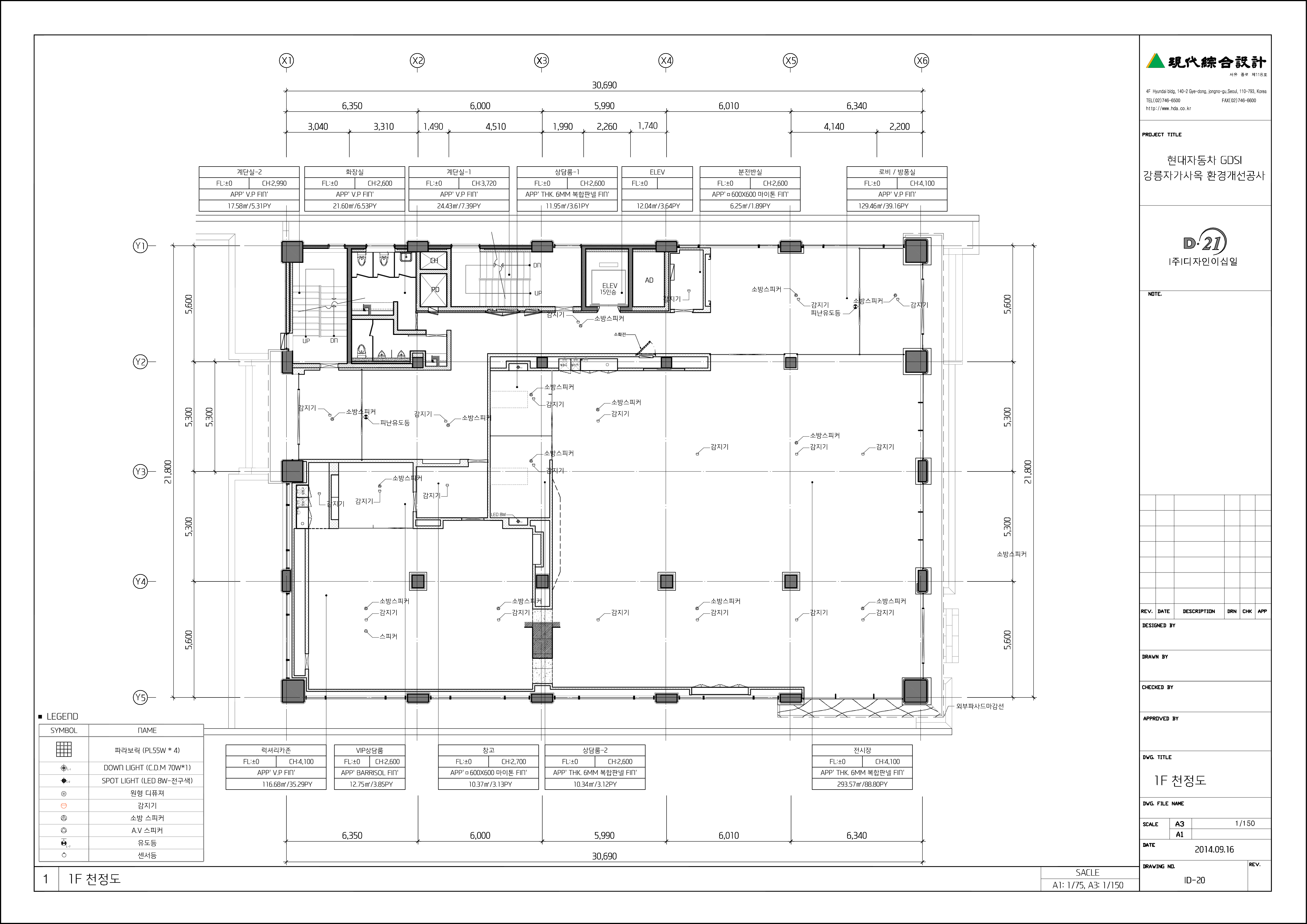
소방관련 질문입니다.
작성자
송훈석
등록일
2014-09-23
조회수
2061
내용
안녕하세요. 저희는 인테리어 업체로서 소방관련해서 여쭤볼 것이 있어 이렇게 문의를 드립니다.
지난번에 소화전 관련해서 문의를 드린적이 있었고 친절한 답변에 다시 한번 감사드립니다.
다름이 아니오라 이번에도 소화전 때와 동일한 공간에서의 소방관련한 문의입니다.
건축주께서 저희가 도면에 표기한 감지기와 소방스피커같은 소방관련 기구들이 위치와 갯수가 맞게 표기되어 있는지 확인해 달라고 하셔서 체크를 부탁드리고자 합니다.
공간의 내용은 1층으로서 자동차 판매 전시장으로 되어있습니다. 혹시 1층에도 피난유도등이 필요한지도 여쭤보고 싶습니다. 첨부로 드린 도면을 참고 하시면 될 것 같습니다.
불철주야로 고생하시는 소방관들의 노고에 감사드리며 답변 부탁드리겠습니다.
감사합니다.
첨부파일
강릉자가사옥도면(전시장_소방체크용).jpg
(다운로드 수: 476)
이전 글
다음 글
